Pfeil Icon

Penthäuser Hochallee

Modernisierung, Sanierung und Dachausbau eines gründerzeitlichen Stadthauses mit 16 Wohnungen und 2 Penthauswohnungen
Bauherr: privat
Fertigstellung: 2019
Wohnfläche vorher 2.350m²
Wohnfläche nachher 2.525m²
Projektleiterin:  Laura Callsen-Bracker

Fotos: Sabine Vielmo

 

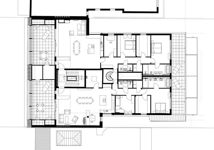
2 Penthauswohnungen mit Dachterrassen
Das Gebäude in Hamburg Harvestehude wurde etwa 1895 als 4-geschossiges Wohngebäude in der typisch hamburgischen Schlitzbauweise erbaut.
Unter Einhaltung der alten Firsthöhe ist das Dachgeschoss, im Zuge einer umfassenden Gebäude-Sanierung, in 2 großzügige Penthaus-Wohnungen umgebaut worden.
Beide Wohnungen haben auf der Hofseite und Straßenseite jeweils eine Dachterrasse. Die Hauptterrasse auf der Straßenseite wird durch anthrazitfarbene Aluminium-Lamellen in Farbe des Daches von vorne begrenzt, sodass sich mit Blick von der Straße optisch eine Dachfläche ergibt.
Das Highlight der Wohnungsgestaltung ist der große Wohn-/Essbereich, der durch einen erhöhten Bereich mit umlaufenden Fensterband bis zu 4,2m hoch und zu jeder Tageszeit lichtdurchflutet ist. Die Terrassen sind durch eine große Glasfront mit Schiebetüren vom Wohnraum getrennt, sodass diese eine Erweiterung des Wohnraumes darstellt. Von hier aus hat man einen weiten Ausblick über die benachbarten Stadtvillen um den Innocentiapark.
Die Schlafräume sind im hinteren Bereich der Wohnung zum ruhigen und grünen Innenhof nach Osten ausgerichtet, das Hauptschlafzimmer verfügt über ein Bad en-Suite. Aus der Badewanne am Fenster hat man einen schönen Blick ins Grüne.

Einbau-Möbelstücke, Küche, Kamin, Türen und Beleuchtungskonzept sind harmonisch miteinander als Gesamtgestaltung miteinander entwürfen und abgestimmt.
Aufgrund der engen Bauweise des Gebäudes mit den typischen Schlitzhöfen, welche nach heutiger Bauordnung nicht mehr zulässig sind, mussten für die neuen Dachgeschosswohnungen hohe Brandschutzauflagen erfüllt werden. Als besondere Herausforderung stellten sich die Küchenfenster heraus, vor diesen mussten Brandschutzvorhänge installiert werden, welche im Brandfall einen Brandüberschlag auf Nachbargebäude verhindern sollen.
Das Dachgeschoss wurde in Holzbauweise errichtet, die Wände in Holzständerbauweise und die Dachelemente aus Brettstapelelementen.
Die gesamten Entwurfs- und Bauprozesse wurden unter Feng Shui Prinzipien erarbeitet. Dies bezieht sich von die Grundrissplanung und Möbel Positionierung, über die Farb- und Materialauswahl bis hin zu Elementen der Außenraumgestaltung.